FOUR BEDROOMS | Mannamead Location | Detached Family Home | THREE Reception Rooms | En-Suites In Two Bedrooms | Off Street Parking | Abundance Of Period & Character Features




















Compton Park Road, Plymouth
Per Month:
£1,800
Added on
2024-11-19
2024-11-19
Status
Let
Let
Postcode
PL3 5BU
PL3 5BU
4 Bedrooms
3 Bathrooms
3 Reception Rooms
Features
- Arts and Crafts Detached House
- Four Bedrooms
- Off Street Parking
- Rear Gardens
- Spacious Living Accomodation
- Beautiful Period Features
Welcome to the market “Tamara” a four bedroom “Arts and Crafts” family home located on a quiet tree lined street of Mannamead.
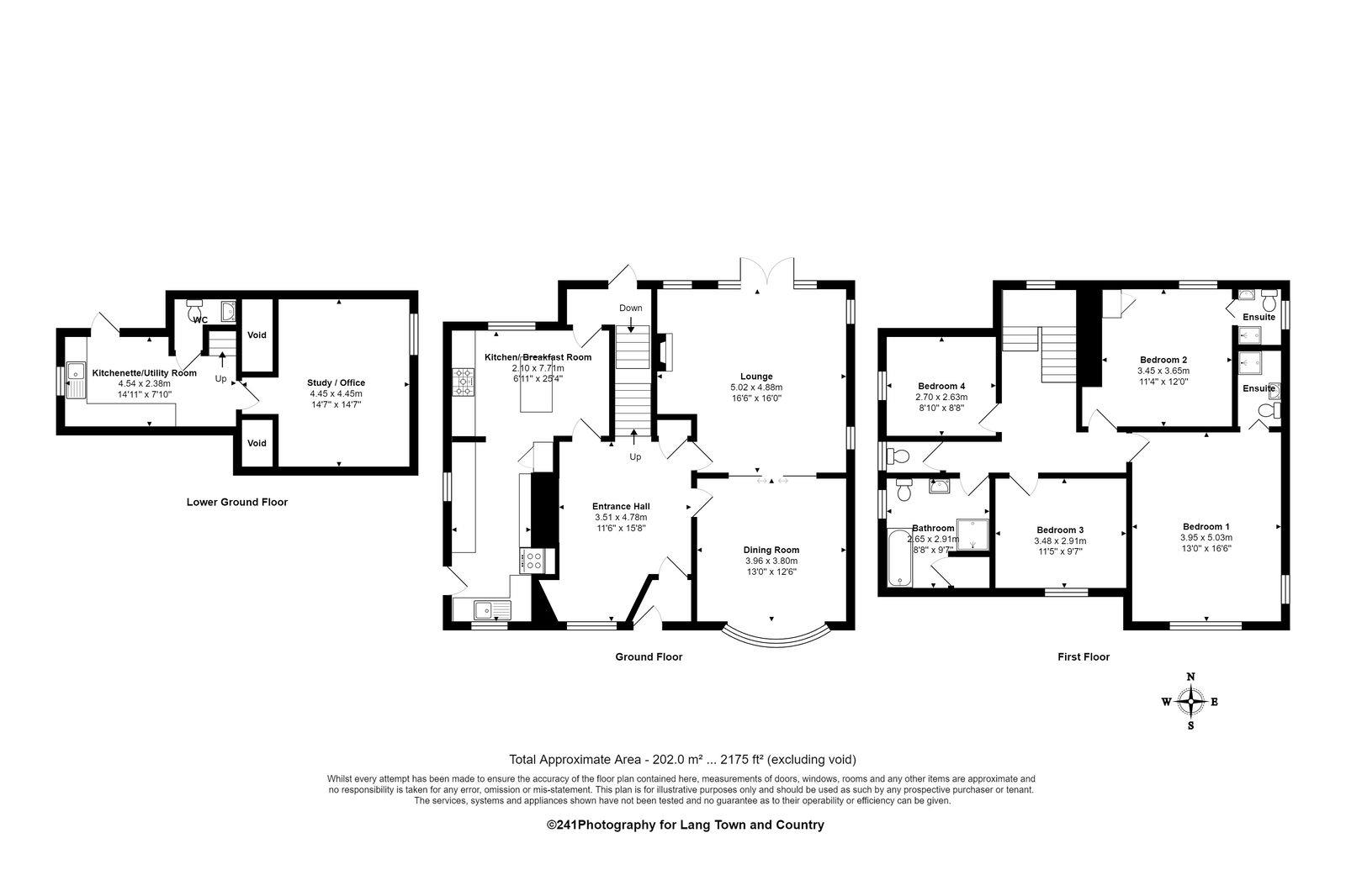
This stunning detached house located on Compton Park Road boasts deceptive accommodation spanning over three floors with striking period features throughout. The property comprises of a large entrance hall, lounge, dining room, kitchen/breakfast room on the ground floor, four bedrooms, family bathroom and two en-suites on the first floor and an office, W.C. and summer kitchen on the garden level.
Externally the property offers a large garden, with well established flower beds, a raised sun terrace and a pond. There is off street parking for one car.
If you wish to apply for this property, please go to our website, lettings, tenants process, read the lettings procedure, download, fill in and return an application form to us. If you do not hear back within 48 hours, please take this as you have unfortunately not been successful.
This property is unfurnished and managed by Lang Town and Country.
Floorplan
Video Tour
Features
- Arts and Crafts Detached House
- Four Bedrooms
- Off Street Parking
- Rear Gardens
- Spacious Living Accomodation
- Beautiful Period Features
